400-003-8066

香蕉视频APP在线观看案例分析

您所在的位置: 首頁 > 資訊頻道 > 技術支持 > 技術文章 > 寶雞大香蕉视频破解主劇場建築聲學設計

寶雞大香蕉视频破解主劇場建築聲學設計

來源:ZOBO香蕉视频APP在线观看 發布日期 2023-03-19 瀏覽:

  為迎接第九屆陝西省藝術節,讓廣大人民群眾共享文化惠民成果,同時提升寶雞市文化軟實力和綜合競爭力,故興建寶雞大香蕉视频破解。寶雞大香蕉视频破解項目選址位於寶雞市金台區新東嶺城市綜合體範圍內(圖1),於2020年10月投入使用。

1寶雞大香蕉视频破解主劇場建築聲學設計

圖1寶雞大香蕉视频破解實景圖

  寶雞大香蕉视频破解建築方案深化設計、內裝方案及深化設計、建築聲學設計,均由天津大學建築設計規劃研究總院有限公司獨立承擔。寶雞大香蕉视频破解總占地麵積約30000m2,主體建築總麵積約40906m2。其中,地上三層建築麵積約25500m2,地下一層建築麵積約15400m2。寶雞大香蕉视频破解內設一個約1205座的主劇場和一個500座的多功能劇場,以及合唱排練廳和音樂排練廳等其他配套房間(圖2)。本文主要介紹主劇場的建築聲學設計。

2寶雞大香蕉视频破解主劇場建築聲學設計

圖2寶雞大香蕉视频破解大廳實景圖

  一、劇場功能及建築概況

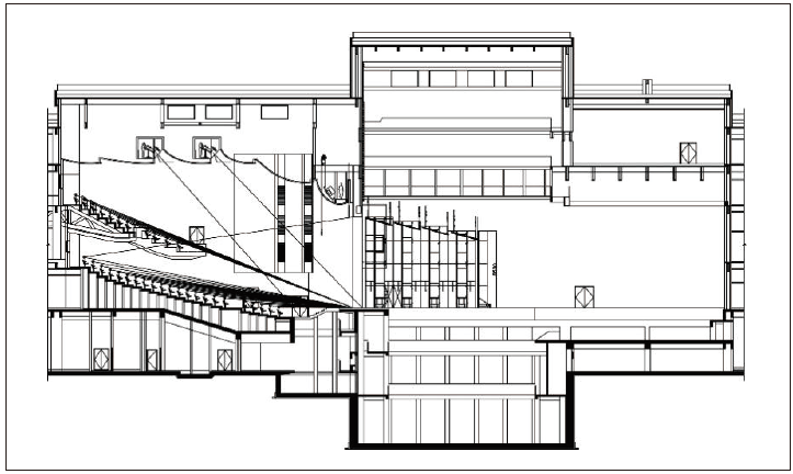
  寶雞大香蕉视频破解主劇場主要以演出各類音樂劇、交響樂、地方戲曲等舞台類演出,以及舉辦大型會議為主。主劇場座位數約1205座,其中池座870座,臨時座椅90座,二層樓座225座,包廂20座;有效容積約10309m³,每座容積8.5m³/座。主劇場建築平麵略呈馬蹄形,樓座由觀眾廳後部延伸至兩側,良好的體型為建築聲學提供了較好的聲場環境。舞台呈品字形,包含主舞台、側舞台和後舞台,舞台總麵積1768m2,舞台開口為16m×10m;舞台台口線至池座和樓座後牆水平距離為32m;觀眾廳寬度為29.2m;樓座下開口高深比5.2:7.3=1:1.4≥1:1.5,符合規範要求。池座觀眾席共22排(圖3),前後高差(總起坡)為5.5m,平均起坡為0.26m;樓座觀眾共7排(圖4),前後高差(總起坡)為2.98m,平均起坡為0.5m。舞台設有活動音樂罩,觀眾席前部設升降樂池。劇場主揚聲器設於台口前部天花主揚聲器橋內,拉聲像揚聲器位於台口八字牆區域,所有揚聲器均為暗藏式;音控室、燈控室設於池座後牆的中部。圖5~圖6為觀眾廳剖麵圖及實景圖。

3寶雞大香蕉视频破解主劇場建築聲學設計

圖3觀眾廳池座平麵圖

4寶雞大香蕉视频破解主劇場建築聲學設計

圖4觀眾廳樓座平麵圖

5寶雞大香蕉视频破解主劇場建築聲學設計

圖5觀眾廳剖麵圖

6寶雞大香蕉视频破解主劇場建築聲學設計

圖6觀眾廳實景圖

  二、主要聲學設計指標

  根據主劇場使用功能及規模的不同,同時參考業主方的使用要求,確定觀眾廳內聲學的音質參量指標,並作為聲學設計及室內設計必須考慮的原則。此外,根據業主使用需求,主劇場以演出歌舞劇為主,所以,設計指標以不使用舞台音樂罩工況為準。

  根據以上情況,對於寶雞大香蕉视频破解主劇場,各項聲學設計技術指標如下。

  混響時間RT:要求滿場1.5s±0.1s,空場1.7s±0.1s,頻率特性見表1。

  聲場不均勻度:在自然聲源的條件下,大與小聲級差值≤6dB〜8dB。

  音樂明晰度C80:1dB~3dB。

  語言清晰度D50:≥0.45。

  語言傳輸指數STI:≥0.45。

6.寶雞大香蕉视频破解主劇場建築聲學設計

  三、建築體型設計

  1、八字牆形狀設計

  主劇場觀眾廳平麵整體呈馬蹄形,能提供良好的聲場效果。主劇場同時承擔音樂演出的需求,需要以自然聲進行演出,舞台八字牆設計尤為重要。舞台八字牆能為觀眾席前區提供前次反射聲,提高該區域觀眾的觀演效果。圖7為調整前的台口八字牆聲線分析圖,可以看出,圖中藍色區域,即觀眾廳前中區缺少前次反射聲。對八字牆形狀進行調整後的聲線分析見圖8,前次反射聲能覆蓋觀眾席中前區,保證觀眾席區域觀眾能夠獲得很好的豐滿感。

7寶雞大香蕉视频破解主劇場建築聲學設計

圖7八字牆調整前聲線分析圖

8寶雞大香蕉视频破解主劇場建築聲學設計

圖8八字牆調整後聲線分析圖

  2、吊頂形式設計

  觀眾廳剖麵設計取決於兩個因素。一是規範規定的每座容積,它能確定觀眾廳吊頂的大概高度;二是觀眾廳剖麵聲線分析,它能確定吊頂的形式。結合上述兩個因素,確定的吊頂形式如圖9、圖10所示。可以看出,經吊頂反射的聲音能覆蓋觀眾席的所有區域,其分布均勻,能達到良好的聲場效果。

9寶雞大香蕉视频破解主劇場建築聲學設計

圖9剖麵聲線分析圖(聲源位於大幕線後)

10寶雞大香蕉视频破解主劇場建築聲學設計

圖10剖麵聲線分析圖(聲源位於樂池)

  四、觀眾廳表麵裝修材料的聲學設計

  根據確定的混響時間值,對主劇場觀眾廳進行聲學材料布置,同時遵循室內聲學材料布置原則,確定觀眾廳空間以下部位的材料及構造做法。

  (1)觀眾廳地坪及走道

  主劇場主體結構采用鋼結構,由於工期問題,觀眾廳樓麵基層采用纖維水泥壓力板,基層下采用排布緊密的小鋼柱起支撐作用,為了盡可能減小人員走動產生的振動噪聲,采用兩層共48mm厚纖維水泥壓力板(單層麵密度≥40kg/m2)、兩層之間鋪設1.2mm厚隔聲氈作為樓麵基層材料。同時,為了避免剛性連接,在鋼柱與地下一層鋼筋混凝土樓麵之間布置16mm厚減振層。觀眾廳地坪材料采用“15mm厚實木地板+15mm厚鬆木毛地板”。為了進一步降低人員走動產生的振動噪聲,在觀眾廳的主要通道(即走道位置)鋪設地毯,具體構造為“10mm厚阻燃地毯+20mm厚鬆木毛地板”。

  (2)觀眾廳吊頂

  為了保證足夠的反射聲,以及結合吊頂異形造型的需求,吊頂材質采用GRG,建議厚度不低於30mm,體密度不低於1800kg/m3。

  (3)觀眾廳側牆前區

  該區域需要將聲音反射到觀眾席區域,因此,需采用硬質材料,結合內裝設計方案,此區域采用與吊頂相同的GRG材料。

  (4)觀眾廳側牆中區

  該區域同樣需進行反射處理,結合內裝設計方案,在此區域布置15mm厚實木板。

  (5)觀眾廳側牆後區、觀眾廳後牆

  觀眾廳側牆後區及後牆區域材料需以強吸聲為主,避免產生回聲,結合混響時間設計,此區域采用木質穿孔板吸聲構造,具體做法為“15mm厚穿孔木質板(孔徑3mm、孔距16mm)+50mm厚玻璃棉(容重32kg/m3)”。其中,側牆區域反射、吸聲材料布置位置參考圖11。

11寶雞大香蕉视频破解主劇場建築聲學設計

圖11牆體材料布置位置示意(紅色代表反射、藍色代表吸聲)

  (6)樓座欄板

  樓座欄板應避免垂直麵,做吸聲或擴散處理。根據觀眾廳混響時間控製,以及結合內裝裝飾效果,在欄板部分做弧形擴散處理,大樣示意見圖12。

12寶雞大香蕉视频破解主劇場建築聲學設計

圖12樓座欄板大樣示意圖

  (7)舞台

  舞台容積27762m³,大約是觀眾廳的3倍,混響時間要求與觀眾廳接近。因此,在舞台工藝進行舞台幕布布置的前提下,對舞台進行混響時間設計。一層天橋以下采用12.5mm厚穿孔石膏板,具體構造為“12.5mm厚穿孔石膏板(穿孔率13.1%,大小眼孔,孔徑12/8)+50mm厚離心玻璃棉(容重32kg/m3)+350mm厚空腔”。為了防止道具等衝撞破壞牆體,建議5m以下采用容重大於1150kg/m3的中密度埃特板、5m至一層天橋采用12.5mm厚石膏板,兩種材料構造相同。一層天橋至二層天橋下采用12.5mm厚石膏板,具體構造為“12.5mm厚石膏板+400mm厚空腔”,進一步降低低頻混響時間。吊頂進行無機纖維噴塗,避免聲音經此處反射,產生回聲。

  五、計算機模擬分析

  混響時間設計完成後,采用Odeon軟件對聲場環境進行模擬,對方案起到一定的校正作用。觀眾廳各部位吸聲係數見表2,圖13為模擬軟件中三維模型圖,圖14~圖18為各參數的模擬結果,表3為各測點平均值。

12寶雞大香蕉视频破解主劇場建築聲學設計

表2觀眾廳界麵吸聲係數表

13寶雞大香蕉视频破解主劇場建築聲學設計

圖13Odeon軟件三維模型圖

14寶雞大香蕉视频破解主劇場建築聲學設計

圖14T30參數模擬結果

15寶雞大香蕉视频破解主劇場建築聲學設計

圖15SPL參數模擬結果

16寶雞大香蕉视频破解主劇場建築聲學設計

圖16C80參數模擬結果

17寶雞大香蕉视频破解主劇場建築聲學設計

圖17D50模擬結果

18寶雞大香蕉视频破解主劇場建築聲學設計

圖18STI參數模擬結果

18寶雞大香蕉视频破解主劇場建築聲學設計

表3各頻點模擬參數平均值

  六、測試結果及分析

  根據混響時間測量規範,在觀眾廳內共布置17個測點,對主劇場進行空場竣工檢測,各參數檢測結果見表4。

18寶雞大香蕉视频破解主劇場建築聲學設計

表4各測點實測參數平均值

  從檢測結果可以看出:

  空場中頻混響時間平均值為1.67s,同時考慮工程誤差,在設計要求範圍內;低頻為2.04s,不超出規範規定的限值範圍;中高頻混響時間平直,整個混響時間測試結果較為理想,滿足設計要求。

  聲壓級檢測結果表明,17個測點的聲壓級為77.6dB,聲壓級為73.95dB,差值為3.65dB,小於6dB,說明廳堂內聲壓級分布均勻。

  音樂明晰度是評價音樂聲是否清晰的參數,所有倍頻程測量結果均大於1dB,說明觀眾能很好地聽清音樂聲。

  語言清晰度是評價廳堂語言聲是否清晰的參數,所有倍頻程測量結果均大於0.3,略小於要求的≥0.45,可能是由於空場環境缺少觀眾吸聲造成的。

  語言傳輸指數同樣是評價語言聲的參數。參數越大,代表觀眾聽到的語言聲越清晰。測點測試結果均值為0.52,表明觀眾廳內清晰度好。

  作為寶雞市嶄新的文化建築,寶雞大香蕉视频破解是寶雞市市民共享文化盛宴的重要場所。本次建築聲學設計,通過前期的建築體型設計、混響時間設計、計算機輔助模擬,及後期聲學檢測,表明主劇場混響時間設計達到預期、混響時間特性曲線符合規範、聲場分布均勻、具有一定的豐滿度和清晰度,滿足表演劇種的功能使用要求。有理由相信,未來寶雞大香蕉视频破解一定能肩負豐富人們精神文化生活的重任,為寶雞市市民帶來美好的視聽體驗。

  選自《演藝科技》2021年第8期陳航,劉剛《寶雞大香蕉视频破解主劇場建築聲學設計》,轉載請標注:演藝科技傳媒。更多詳細內容請參閱《演藝科技》。

網站地圖