400-003-8066

音視頻係統解決方案
電影院標準全景聲還音係統

電影院標準全景聲還音係統

全景聲還音係統具備了聲道和對象兩者的優點,混錄一次,各處播放,捕捉了原創者所有的意圖,影院觀眾獲得了以前未有的身臨其境的體驗,觀眾融為電影的一部分,自然而逼真的聲軌,觀眾與故事合二為一,輸出取決於回放環境。

全國谘詢熱線
400-003-8066

在線谘詢

  畫麵從平麵走到立體,聲音也從平麵的環繞聲走到空間的方位立體。全景聲還音係統具備了聲道和對象兩者的優點,混錄一次,各處播放,捕捉了原創者所有的意圖,影院觀眾獲得了以前未有的身臨其境的體驗,觀眾融為電影的一部分,自然而逼真的聲軌,觀眾與故事合二為一,輸出取決於回放環境。

電影院標準全景聲還音係統

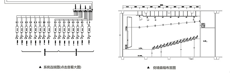
銀幕揚聲器

  中置揚聲器應總是擺放在銀幕的中線上,而不論銀幕具體位於影廳的哪個位置。在傳統影院中,左側的銀幕揚聲器和右側的銀幕揚聲器均應擺放在1.85:1和2.39:1圖像之間的位置上,對於銀幕寬度超過12米的影廳,增加兩隻銀幕揚聲器將幫助整個銀幕獲得更流暢的聲音移動效果。新增兩隻揚聲器之後,應將左中揚聲器和右中揚聲器分別擺放在中置揚聲器與左側銀幕揚聲器和右側銀幕揚聲器之間。在畫麵高度不變的傳統影廳中,應豎直擺放銀幕揚聲器,並將揚聲器的聲學高度置於銀幕高度的三分之二左右。

電影院標準全景聲還音係統0

電影院標準全景聲還音係統1

銀幕低頻揚聲器

  用於播放低頻效果通道的低音揚聲器應安裝在銀幕後的底麵與後牆相接的位置上,或齊平地嵌入銀幕牆。使用多個低音揚聲器時,建議將其放在一起以通過偶和效應增強聲音效果。

環繞揚聲器

  全景聲環繞音箱能夠定位從影廳任何位置發出的聲音。 為達到此目的,應在影廳的側牆和天花板上增加一些環繞聲揚聲器。 側牆上的環繞聲揚聲器銀幕邊緣位置開始放置環繞聲揚聲器延伸至房間後牆。例如,電影中直升機的聲音就可以被當做一個聲音對象進行處理,當直升機在銀幕上飛行時,它的聲音會依次經過觀眾席兩側和後麵的每個揚聲器,實現了極為流暢的聲音移動。影廳天花板上應安裝兩列揚聲器,從銀幕一直排列至後牆,這兩列揚聲器應分別與左中揚聲器(LC)和右中揚聲器(Rc)的銀幕聲道對齊,天花板上的揚聲器應總是以銀幕的對稱排列。 頂部環繞聲揚聲器的設計特性應與側牆和後牆的環繞聲揚聲器相一致。以模擬畫麵中從上方來的聲音,例如直升機在頭頂盤旋、打雷聲、下雨聲等等。而這種頭頂的環繞聲是之前的聲音係統中所缺乏的。添加了頭頂的聲場後,真正實現了包圍觀眾的聲場,使觀眾能沉浸在影片當中。

環繞聲低頻揚聲器

  繞聲揚聲器相一致。以模擬畫麵中從上方來的聲音,例如直升機在頭頂盤旋、打雷聲、下雨聲等等。而這種頭頂的環繞聲是之前的聲音係統中所缺乏的。添加了頭頂的聲場後,真正實現了包圍觀眾的聲場,使觀眾能沉浸在影片當中。

香蕉视频APP在线观看資質 / ZOBO QUALIFICATION

香蕉视频APP在线观看營業執照 高新技術企業證書 中關村高新技術企業

(已獲得33項資質認證,包括5項國際認證、4項國家認證、24項行業資格認證書) 查看全部資質

項目實施能力 / PROJECT IMPLEMENTATION CAPACITY

項目技術工程師項目技術工程師

建設工程師建設工程師

工程師工程師

關聯案例 RELEVANT CASES

方案概述:
【查看詳情】

相關產品RELATED PRODUCTS

網站地圖